메뉴

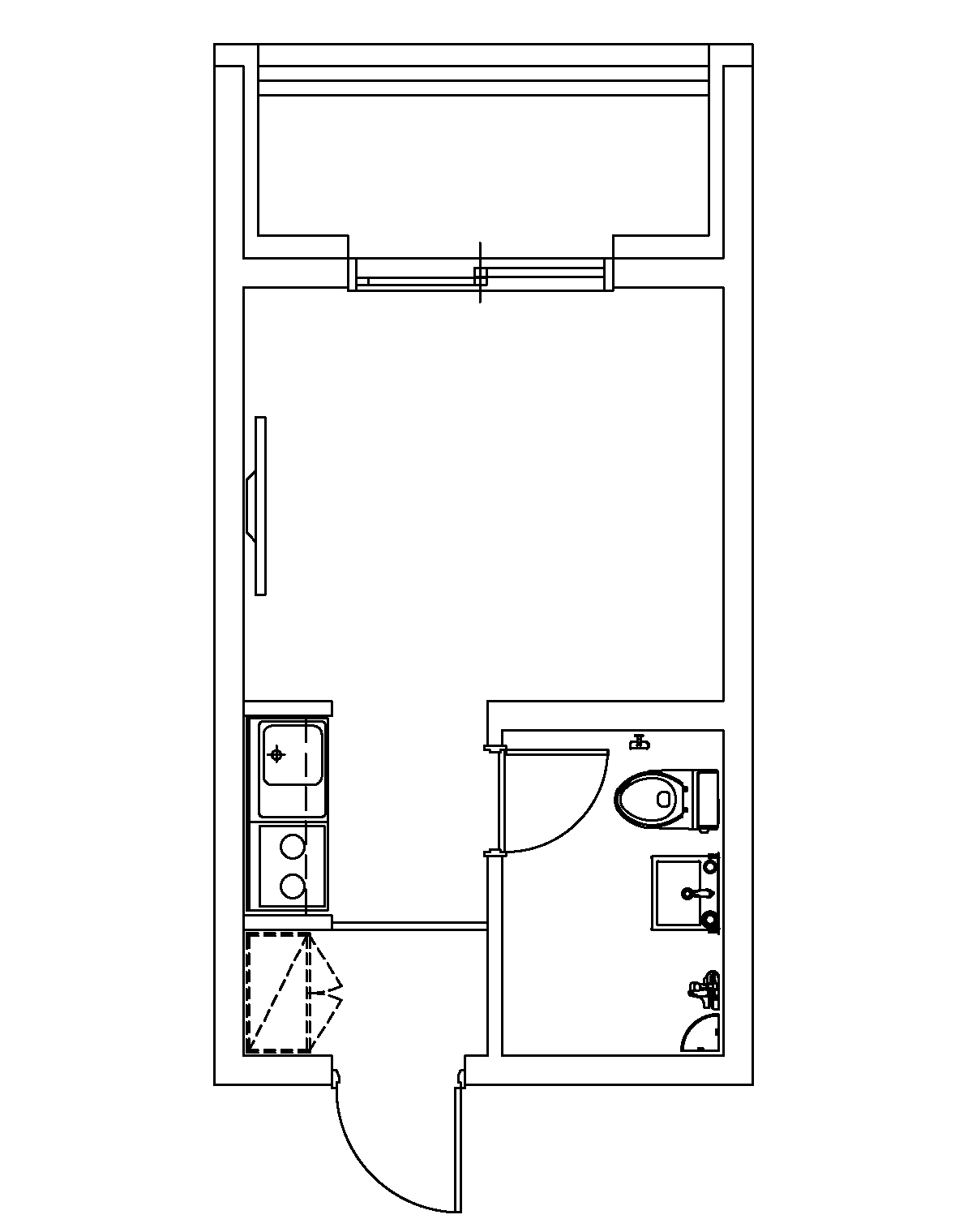
숙박시설안내 : 대천수련원(상운관)

기준인원
1인
최대인원
2인
면적
5.6평
총 실수
총 4실

사용요금

비수기(주중)
30,000원
난방기(12~3월)
50,000원
비수기(주말,휴일)
50,000원
성수기(7월15일~8월 15일)
60,000원

평면도 보기

닫기

숙박시설안내

대천수련원(상운관) 1~2인실 평면도

닫기